В Кургане благоустроят городской сад
Для проведения работ город получит федеральный грант
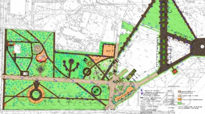
Городской сад в Кургане изменится уже в этом году – власти планируют предусмотреть в проекте новые тропинки и дорожки, освещение, сделать цветники, газоны, и установить малые архитектурные формы. Центральную аллею закатают в асфальт, а остальные дорожки украсит плитка. В новой клумбе со стороны улицы Карла Маркса будут расти многолетние цветы. Дети смогут играть в игровом комплексе. Для шахматистов сделают отдельное пространство с теневыми навесами – перголами. "Всего на благоустройство городского сада в бюджете города предусмотрено около 30 миллионов рублей", – сообщает пресс-служба главы города.

К читателям
Хотите рассказать нам о чем-то важном или высказать свое мнение, пишите: ural-grad@mail.ru. Подписывайтесь на нашу группу в ВК https://vk.com/uralgrad.